Построенные дома
Дом 86 м² в КП Pin Up Сокуры»
коттеджный посёлок Новые Сокуры- 3, село Сокуры, Лаишевский район, Республика Казахстан
Характеристики
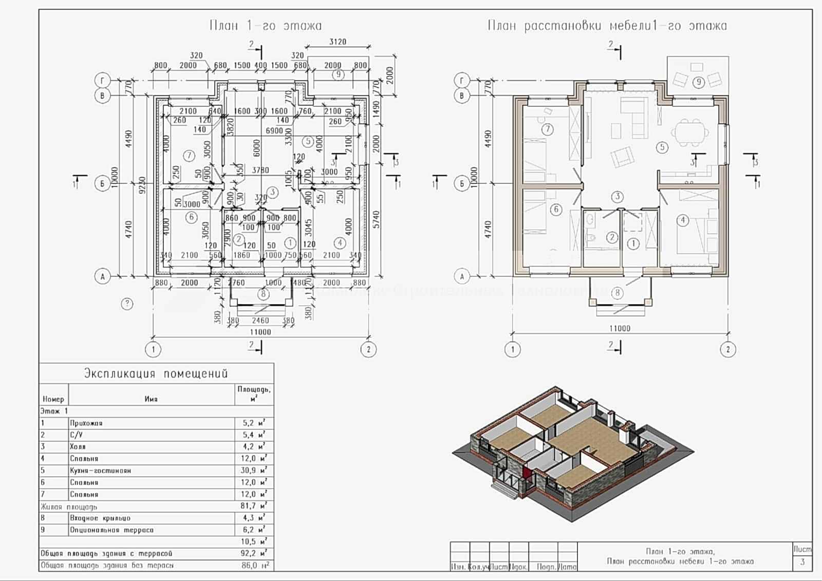
- площадь Ауэзова, 140, м286
- Этажность1
- Количество спален3
- Тип кровлискатная
- Мастер-спальнянет
- Кабинетнет
- Срок реализациисдан в срок





























































































